Eggum is a panoramic site on the Vestvågøy island, in the Lofoten archipelago, also renowned for its architecture designed by Norwegian office Snøhetta. The site is part of the Lofoten Scenic Route which spans 230 kilometers / 140 miles across the various islands of the archipelago.
Located near a fishing village of the same name in an elevated position overlooking the Arctic Ocean, the Eggum site is very popular in Summer as a panoramic point and a camping place from which to see the midnight sun and admire the spectacular natural scenery around due to its.
A former WW2 German radar station, built on a hillock and vaguely resembling a medieval guard tower (the locals call it “The Fort”, indeed), makes the site easily recognizable from the distance.
The Eggum site with the old WW2 radar installation known as “The Fort” seen from the distance, the hill on which the radar station was built is called “Kvalhausen”; photo Steinar Skaar
In 2007, a 5,500-square-meter / 59,000-square-foot area of the Eggum site underwent a complete renovation aimed at regulating the tourists’ access, minimizing their impact on the delicate natural environment around, and providing some basic services to both visitors and staff.
Conceived by award-winning architectural firm Snøhetta, the project comprises separated parking areas for automobiles and caravans; an open-air amphitheater; a service building; hiking trails; and a sculpture by Swiss artist Markus Raetz.
Overall, Snøhetta’s design is characterized by an approach that emphasizes sustainability and integration with the landscape. For example, the amphitheater was largely created by making use of a preexisting borrow pit.
The parking spaces and the retaining walls that encircle the amphitheater were built using gabions filled with locally sourced rocks, to create a unifying effect and to accord the new constructions with the surrounding rocky landscape, both visually and symbolically.
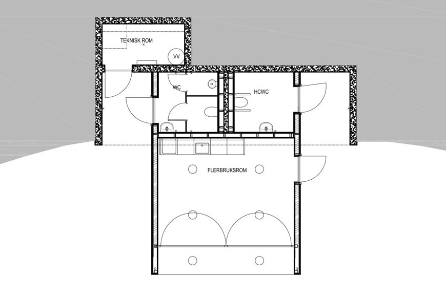
Partially “carved” into the hill on which the radar installation lies, the small 20-square-meter / 215-square-foot service building is made up of two parts: a concrete structure – containing three public toilets and a technical space – buried into the mound, and a wood-clad volume, protruding from the hill slope, which accommodates a multi-purpose room and a small kitchen.
The wood planks used to clad the building walls and roof, both internally and externally, were sawed from driftwood collected on a shore nearby.
View of the Vestvågøy island coastline near Eggum; photo Judith
View of the Eggum site from the south-west; photo Steinar Skaar
Eggum, the amphitheater, and the service building; photo Lars Nordbye
Eggum, site plan; image: Snøhetta
The service building from the south-east; photo Steinar Skaar
Service building, plan, and longitudinal section; images: Snøhetta
The open-air amphitheater is oriented so that everyone can experience the midnight sun in the best way; photo Steinar Skaar
Eggum, the wood planks used for the service building cladding were sewed from driftwood collected on a beach close to the panoramic site; photos Steinar Skaar
The gabion walls which define the amphitheater and the parking areas were filled with locally sourced stones; photo Steinar Skaar
Views of the Eggum service building and amphitheater designed by Snøhetta from (top to bottom) south-east, east, and north; photos Steinar Skaar
The Hode sculpture by Markus Raetz represents a human head watching the sea, which appears upright or turned upside down depending on the observer’s point of view
All photos courtesy of Norwegian Scenic Routes https://nasjonaleturistveger.no
