Lascaux 4 International Center for Cave Art.
© Boegly + Grazia photographers. Courtesy of Snøhetta
Snøhetta + Casson Mann: Lascaux 4 – International Center for Cave Art, Montignac, France
Introduction
Discovered by chance in 1940, the archaeological site of Lascaux, near the town of Montignac in southwestern France, is an exceptional ensemble of caves decorated with over 600 parietal paintings dating to some 18,000 years ago.
Also known as “The Sistine Chapel of Prehistory”, the cave was closed to the public 23 years after its discovery due to the extensive damage caused to the fragile paintings by visitors, artificial lighting, and exposure to exterior elements. The cave is still in danger today, mainly due to the spread of fungal and mold infestation, and cannot be visited other than by an extremely restricted number of people. Therefore, a partial replica of the cave and its paintings, called Lascaux 2, was built in 1983; a second facsimile, known as Lascaux 3, was thereafter created in 2008 for a traveling exhibition. Yet, a real museum and interpretation center, adequate to one of the world’s most important archaeological sites, was much needed; in 2012, after an international architectural competition, a team led by Norway’s firm Snøhetta was selected to design the new center, named Lascaux 4.
A holistic museum
Though clearly characterized by Snøhetta’s vision, the museum’s design was a collaborative effort by architects, scenographers, archaeologists, lighting designers, and digital media specialists aimed to create an experience based on a “holistic approach that considers the landscape, the architecture, the interior, and the scenography as a whole” (from the project description by Snøhetta).
The 8,384-square-meter / 90,200-square-feet building is located on a hillside, in the transitional zone between a dense forest and the cultivated fields of the Vézère Valley.
Taking inspiration both from the geologic landscape around and the visual power of the cave nearby, Snøhetta conceived a tectonic architecture which they define as “a fissure in the landscape”.
Indeed, the bare concrete volume of the building is cut, both vertically and horizontally, by two long, glazed fissures that create a dynamic sequence of forms and, at the same time, pour plenty of daylight into the museum’s interior.
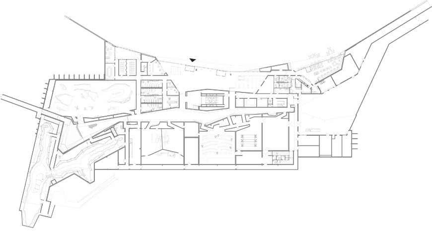
Ground floor plan; image © Snøhetta
Lascaux 4 International Center for Cave Art, main facade, and interior view; © Boegly + Grazia photographers. Courtesy of Snøhetta
Transverse sections; images © Snøhetta
The visiting experience – part 1
The architecture of Lascaux 4 is intimately connected to the sequence of visitors’ experiences inside the museum.
From the lobby, the public goes up to an outdoor panoramic terrace which provides a magnificent view of the surrounding landscape, then they descend through a gently sloped ramp into the dim-lighted gallery which accommodates the real-scale replica of the Lascaux cave, thus reviving the surprising experience of those who first discovered the cave in the ’40s.
The facsimile was developed starting from a 3D laser scanning of the original cave, with a 1-millimeter tolerance, and then molding the exact copy through a CNC-based manufacturing process.
Made in resin, sprayed with a mineral-filled coating to accurately reproduce the rock surface, the 900-square-meter / 9,700-square-foot replica is decorated with 1900 paintings, created in two years by a team of 25 artists, with pigments similar to those used by the original prehistoric painters.
To further enhance the visitor’s experience, the interior space is maintained at the same humidity and temperature (about 16° C) as the real cave.
After the cave replica gallery, the public goes out into an open-air courtyard with a small garden; this calm and daylight-filled transitional space is intended to “reset” the visitors’ mood and prepare them for the next part of the exhibition.
The replica of the Lascaux Cave; © Boegly + Grazia photographers. Courtesy of Snøhetta
The garden courtyard © Boegly + Grazia photographers. Courtesy of Snøhetta
The visiting experience – part 2
The second part of the visit encompasses a sequence of pedagogic micro-exhibitions, and interactive installations aimed to facilitate the comprehension of the historical, cultural, and symbolic background of the Lascaux paintings.
With the support of a portable augmented-reality device called Digital Companion (intentionally, the museum doesn’t use text panels), the visitors go through an array of exhibition spaces which Casson Mann grouped into various thematic zones.
Atelier de Lascaux presents replicas of eight large fragments of the cave, either suspended from the ceiling or rising from the stone floor, accompanied by interactive explanations and video projections.
In the Cinema, a 3D film projected on two giant, immersive screens takes visitors on a digital voyage through painted caves around the world, from Australia to Spain, and from Mongolia to Canada.
The Imagination Gallery is a large interactive digital installation, curated by philosopher John Paul Jouary, which depicts the influence of prehistoric cave art on modern and contemporary artists.
Finally, for its full length, the building is traversed by a long space, called Central Orientation Zone, illuminated by a narrow skylight. This unifying space was designed both to “regulate” the flow between the various exhibition spaces, and as a social place where visitors can rest, gather, and meet.
Atelier de Lascaux, installation view. Photo © Boegly + Grazia photographers. Courtesy of Snøhetta
Atelier de Lascaux, installation view; photo © Eric Solé 2017. Courtesy of Snøhetta
The 3D Cinema; photo © Eric Solé 2017. Courtesy of Snøhetta
The Imagination Gallery; installation view.
photo © Boegly + Grazia photographers. Courtesy of Snøhetta
View of the Central Orientation Zone; photo © Eric Solé 2017. Courtesy of Snøhetta
Image Gallery
View at night; © Boegly + Grazia photographers. Courtesy of Snøhetta
View towards the roof terrace; © Boegly + Grazia photographers. Courtesy of Snøhetta
Photo © Boegly + Grazia photographers. Courtesy of Snøhetta
Lascaux 4 International Center for Cave Art, the lobby.
© Boegly + Grazia photographers. Courtesy of Snøhetta
View of the open courtyard from above © Boegly + Grazia photographers. Courtesy of Snøhetta
The Central Orientation Zone.Photo © Eric Solé 2017. Courtesy of Snøhetta
Photo © Boegly + Grazia photographers. Courtesy of Snøhetta
Atelier de Lascaux, installation view; photo © Eric Solé 2017. Courtesy of Snøhetta
Atelier de Lascaux, installation views.Photo © DAN COURTICE. Courtesy of Snøhetta
Atelier de Lascaux, installation view. Photo © Eric Solé 2017. Courtesy of Snøhetta
